At Rootline Studios, we specialize in designing and building ADUs, renovations, and home remodels that transform the way you live. Whether you need more space for family, extra income through a rental, or a reimagined home that fits your lifestyle, we create beautiful, purpose-driven spaces rooted in thoughtful design. Let’s turn what you have into everything you need—and more.
our process
-

phase 1: research
Before drawing anything, we research all local requirements — zoning, setbacks, height limits, parking, utility rules, and any city-specific ADU guidelines. This ensures your ADU is designed correctly from the start and avoids delays later in the process.
-
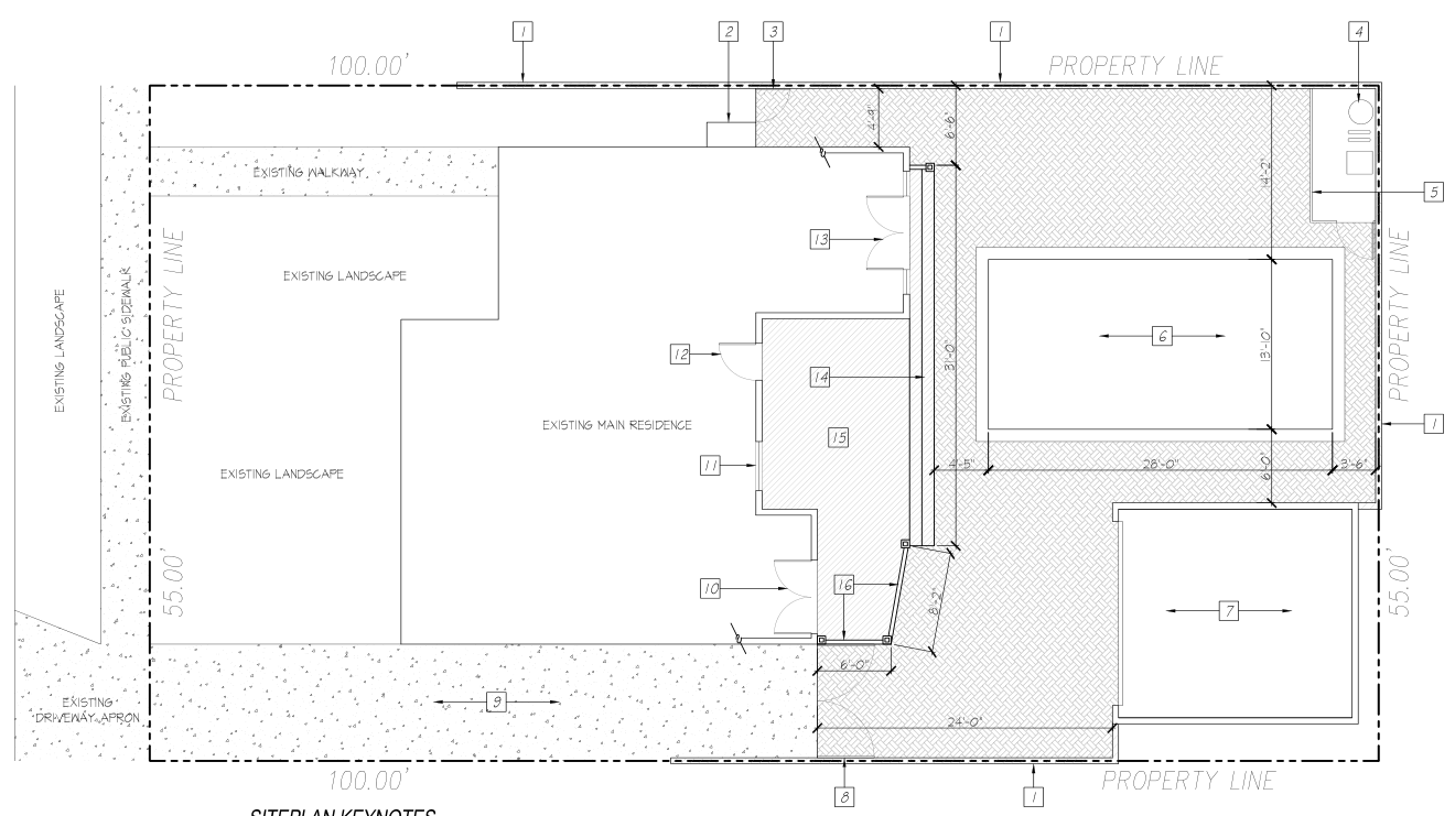
phase 2: design/plan
We start by turning your ideas into clear, detailed architectural plans. This includes measurements, layouts, and 3D visuals so you can see exactly what your ADU will look like before anything gets submitted.
-

phase 3: city/county submittal
Once your plans are finalized, we take care of submitting them to your city or county. We handle all forms, documents, and communication so the process is smooth and stress-free for you.
-

phase 4: corrections
Cities often request revisions — that’s normal. We review the correction list, make all required updates, and resubmit quickly to keep your project moving forward without delays.
-

phase 5: plans approved!
After approval, your ADU is officially cleared for construction. At this point, we partner with our trusted contractor to begin building your ADU with accuracy and efficiency.




